Description
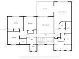
Welcome to Pasadena Estates! A Premier Lakefront Community in the Heart of West Pines. This move-in ready 4bed/4bath home offers expansive living spaces and stunning water views. The garage has been professionally converted into a state-of-the-art home theater with top-of-the-line sound system and epoxy flooring, while still offering hurricane-rated doors for 3-car capacity. Inside, enjoy the convenience of a residential elevator, brand-new appliances, updated fans, chandeliers, and blinds, and recessed lighting throughout. Recently painted inside and out, with flat ceilings in select areas and epoxy floors throughout for a sleek, modern look. Accordion shutters. Laundry room with sink, LOW HOA, and proximity to A+ rated schools, parks, walking trails, shopping, dining, and major highways.
-
4BEDS
-
0.36ACRES
-
4BATHS
-
01/2 BATHS
-
3,233SQFT
-
$387$/SQFT
School Information
Description
Welcome to Pasadena Estates! A Premier Lakefront Community in the Heart of West Pines. This move-in ready 4bed/4bath home offers expansive living spaces and stunning water views. The garage has been professionally converted into a state-of-the-art home theater with top-of-the-line sound system and epoxy flooring, while still offering hurricane-rated doors for 3-car capacity. Inside, enjoy the convenience of a residential elevator, brand-new appliances, updated fans, chandeliers, and blinds, and recessed lighting throughout. Recently painted inside and out, with flat ceilings in select areas and epoxy floors throughout for a sleek, modern look. Accordion shutters. Laundry room with sink, LOW HOA, and proximity to A+ rated schools, parks, walking trails, shopping, dining, and major highways.
Copyright 2025, Participating Associations/MLS’s in the SEFMLS, MIAMI Association of REALTORS, Realtor Association of Greater Ft. Lauderdale, South Broward Board of Realtors. All rights reserved. The data relating to real estate for sale on this web site comes in part from the participating Associations/MLS’s in the Southeast Florida Regional Multiple Listing Service cooperative agreement, MIAMI Association of REALTORS, Realtor Association of Greater Ft. Lauderdale, South Broward Board of Realtors. The information being provided is for consumers' personal, non-commercial use and may not be used for any purpose other than to identify prospective properties consumers may be interested in purchasing. Information is deemed reliable but not guaranteed. Copyright 2025, Participating Associations/MLS’s in the SEFMLS, MIAMI Association of REALTORS, Realtor Association of Greater Ft. Lauderdale, South Broward Board of Realtors. All rights reserved. Use of search facilities of data on the site, other than a consumer looking to purchase real estate, is prohibited. Data last updated 2025-11-18T12:52:12.32.
